
一、技術參數:
型號Model BR0.65
單片有效面積Active Area Per Plate 0.64m2,
板片波紋深度Nominal plate gap 3.8mm
板片厚度Thi ckne ss 0.6mm
板片角孔尺寸Port dim 150mm
較大流量Max flow rate 253M3/H
接管口徑Connection diameter DN150
工作壓力Working pressure 0.6MPa、1.0MPa、1.6MPa
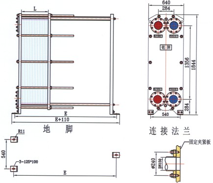
二、設備外形尺寸:
型 號 換熱面積 板片數 I F 重 量 流 量
type area(m2) nummber of plates weight(Kg) Flow rate(m3/H)
BR0.65--A 50 77 338 1200 1315 97
BR0.65--C 130 200 880 1750 1866 253
◆A為較小組裝面積,C為較大組裝面積。
◆壓緊尺寸L(mm):L=(4.4±0.2) x 板片數
◆水流量是按單流程、板問流速為0.4m/s時計算的
◆保留數據更改的權利,以上數據僅供參考,具體以實物為準
三、板式換熱器介紹
板式換熱器是由框架、傳熱板片組及夾緊螺栓等主要部件組成。
框架包括一個固定壓緊板和一個活動壓緊板,由上導桿與下導桿支承,在另‘端有一支柱。壓制成的波紋板片懸掛在兩板之間的上導桿上,移動活動壓緊板將板片組壓緊,再用一組夾緊螺柱將固定壓緊板和活動壓緊板夾緊至一定尺寸。兩種介質經固定(或活動)壓緊板上法蘭孔流入由波紋板片組成的各自通道,熱交換后介質再由固定(或活動)壓緊板上的法蘭孔流出。同定壓緊板、活動壓緊板、支柱及導桿均為低碳鋼?紤]到用戶的多種使用要求,框架設計有多種型式,主要有雙支撐框架式和常用的落地式等,也可根據用戶的要求更改框架的型式。
傳熱板片是板式換熱器的核心部件之一。波紋板片通過一次壓制成型,合理的波紋設計增加了板片有效傳熱面積,使流體順波紋通過時形成湍流,強化了傳熱過程。裝配時波紋與波紋相交成大量接觸抗點,大大提高了板片組的剛度,因此能承受較高的壓力。每塊板片作為一個傳熱面,在密封墊的作用下,板片的兩側分別有冷熱介質通過,進行換熱。板片上有四個分配液體的孑L,孑L及板片四周裝有密封墊片,限制介質在板片組內流動,各板片形成平行的通道,流經里面的兩種介質,作較佳換熱效果的方向流動,為適應多種腐蝕性較強的介質,波紋板片材料有:工業純鈦TAl,用于海水或其它腐蝕性介質;多種不銹鋼,用j=淡水、飲用水、油類及其它非腐蝕性介質。
在波紋板片的密封槽上裝有密封墊片,密封墊片設計成雙道密封結構,并且有信號孔。當介質如從第一道密封泄露時,可從信號孑L泄出設備之外,便能及早發現問題加以解決,不會造成兩種介質的混合。密封墊片可根據不同的流體和操作溫度選用不同的膠種。
四、板式換熱器板片材質:
*不銹鋼SUS304 SUS316L
凈水、河川水、食物油、礦物油
*工業純鈦及鈦鈀合金Ti tanium and Pal ladium
海水、鹽水、鹽化物
*哈氏合金Hadtelloy Alloy
濃硫酸、鹽酸、磷酸
*鎳Nickel
高溫高濃度苛性鈉
五、板式換熱器墊片材質:
*丁腈橡膠NBR
水、海水、礦物油、鹽水 一15--1IO~C
*高溫橡膠BNBR -
高溫礦物油、高溫水 15--140~C
*三元乙丙EPDM
熱水、水蒸氣、酸、堿 一25--150~C
*氟橡膠 Viton/Fluorine Rubber
強酸、強堿、礦物油、潤滑脂和燃油等 一5--180~C
*氯丁橡膠NEOPRENE
酸、堿、礦物油、低分子量脂烴 一35--130~C
*硅橡膠Silicon Rubber
高溫和某些腐蝕性介質 一65-200℃
六、板式換熱器設計理念:
*板片帶有增壓的新型導流區設計是在板片導流區流速較大的地方采用多路通道增加壓力,使整張板片中的流速達到均等,大大提高了板片的換熱效率,減少了死角,改善了板片的結垢狀況。
*板片高強度掛口設計是在掛口處增加花紋設計,加強翻邊周圍的剛性,組裝起來更加整齊美觀、打開性能更好。
*板片中間部位板槽設計足把板片內部的連續波紋斷開,并存板片I}l增加了半槽結構,緩和板片所承受的壓力,使板片壓制成形后更、卜整,小易彎曲。
*板片互鎖設計是在板片的四角壓制特殊的機械互鎖結構,改善了板片組裝過程中容易串位泄露的現象,使板片組裝起來更加便捷、美觀。
*板片密封墊片全部采用免粘貼搭扣形式,減少運行維護成本,便于維修。
七、板式換熱器的技術優勢和特點:
*傳熱系數高:傳熱板片上的特殊波紋設計,可使流體在極低的流速下產生強烈的湍流,湍流的自凈效應又可防止污垢的產生,使得板式換熱器的傳熱系數為管殼式換熱器的3-5倍。
*經濟性:相同換熱量的前提下,與管殼式比較:投資少、運行費用低、維修費用低。
*可調整性:只需增加和減少板片即可滿足工藝過程改變的需求。
*結構緊湊:在相同換熱量的前提下,占用空間僅為管殼式的1/2一l/3
*易于潔洗維修
八、板式換熱器設計選型:
(1)冷、熱介質的物性參數,如酸堿度、氯根含量、粘度、密度、導熱系數、比熱等。
(2)冷、熱介質的進出口溫度。
(3)冷、熱介質的流量或其中一種的流量。
(4)冷、熱介質壓力損失要求。
(5)板式換熱器固有特性,如板片材料、密封膠墊材料等。


